TỔNG QUAN DỰ ÁN FENICA
Dự án Fenica Tân Đông Hiệp nổi bật tại khu vực nhờ thiết kế thông minh, dù diện tích căn hộ không quá lớn nhưng vẫn đảm bảo không gian sống thoáng đãng, nhiều ánh sáng tự nhiên nhờ bố trí cửa sổ và ban công hợp lý.
| Hạng mục | Thông tin chi tiết |
|---|---|
| Tên dự án | FENICA Tân Đông Hiệp |
| Vị trí | Đường Trần Quang Diệu, P. Tân Đông Hiệp, TP.HCM |
| Chủ đầu tư | Công ty TNHH Đầu tư Dự án Phượng Hoàng |
| Đơn vị phát triển | DLR (Dalat Real) & NK Properties |
| Quy mô đất | 5.537 m² |
| Tổng thể dự án | 02 tháp cao 22 tầng – 579 căn hộ |
| Loại hình căn hộ | 1PN – 43.09 m², 1PN+1 – 48.82 đến 50.48 m², 2PN – 66 m², 3PN – 99 m² |
| Tiện ích nội khu | Thương mại dịch vụ, BBQ ngoài trời, Nhà trẻ, Công viên, Khu sinh hoạt cộng đồng, Gym, Kidzone & Livestream Room… |
| Hình thức sở hữu | Người Việt: sở hữu lâu dài – Người nước ngoài: sở hữu 50 năm theo quy định |
| Bàn giao dự kiến | Qúy 4/2027 |
| Giá bán tham khảo | Từ 36 triệu/m² |
Fenica Tân Đông Hiệp được phát triển bởi Công ty TNHH Đầu tư Dự án Phượng Hoàng, đơn vị đã có kinh nghiệm triển khai nhiều dự án bất động sản, đảm bảo tiến độ thi công cũng như chất lượng bàn giao.
Pháp lý rõ ràng – Minh bạch
– Người Việt: sở hữu lâu dài
– Người nước ngoài: sở hữu 50 năm theo luật hiện hành
Việc sở hữu pháp lý đầy đủ giúp khách hàng yên tâm khi xuống tiền đầu tư hoặc mua ở thực, đặc biệt trong bối cảnh thị trường còn nhiều dự án vướng mắc giấy tờ.
Vị trí kết nối nhanh – ngay trục đường Trần Quang Diệu, dễ dàng tiếp cận trung tâm TP.HCM và khu vực lân cận.
Thiết kế tối ưu diện tích sống, phù hợp với gia đình trẻ và nhà đầu tư cho thuê.
Giá bán hợp lý, tạo biên lợi nhuận tốt cho nhà đầu tư giai đoạn đầu.
VỊ TRÍ DỰ ÁN FENICA
Fenica Tân Đông Hiệp sở hữu vị trí chiến lược trên trục đường Trần Quang Diệu, ngay trung tâm phường Tân Đông Hiệp, khu vực đang phát triển mạnh mẽ nhờ lợi thế kết nối liên vùng. Dự án nằm gần các tuyến giao thông huyết mạch như:
Quốc lộ 13
DT743
Mỹ Phước – Tân Vạn
Quốc lộ 1A & Quốc lộ 1K
Nhờ đó, cư dân Fenice có thể di chuyển linh hoạt đến các khu trung tâm và cụm công nghiệp trọng điểm của khu vực.
| Điểm đến | Thời gian di chuyển |
|---|---|
| Thủ Dầu Một – TP. Thủ Đức – Quận 12 | 15 – 20 phút |
| Trung tâm TP.HCM | Khoảng 50 phút |
| Sân bay quốc tế Long Thành (tương lai) | Khoảng 60 phút |
Khu vực xung quanh Fenica Tân Đông Hiệp đang là tâm điểm của nhiều dự án hạ tầng quan trọng:
Vành đai 3
Cao tốc TP.HCM – Thủ Dầu Một – Chơn Thành
Tuyến Metro số 1 kéo dài
Các chuyên gia đánh giá, sự xuất hiện của các công trình này sẽ tạo cú hích mạnh cho thị trường bất động sản khu vực, đặc biệt là những dự án nằm ngay trục giao thông như Fenica – nơi vừa có thể an cư, vừa có thể đầu tư sinh lợi dài hạn.
TIỆN ÍCH DỰ ÁN FENICA
Chủ đầu tư Phượng Hoàng định hướng Fenica trở thành một khu căn hộ có khả năng đáp ứng đầy đủ nhu cầu sinh hoạt hằng ngày của cư dân ngay trong nội khu, giảm phụ thuộc vào tiện ích bên ngoài. Các nhóm tiện ích được bố trí theo trục di chuyển tiện lợi, phân tách rõ giữa không gian sinh hoạt cộng đồng và các khu nghỉ ngơi mang tính riêng tư.
Hệ thống tiện ích nội khu gồm:
Hồ bơi, công viên cây xanh, lối dạo bộ
Phòng gym, yoga, khu chăm sóc sức khỏe tại khối tiện ích
Trung tâm thương mại và các dịch vụ thiết yếu như siêu thị mini, café, nhà hàng
Khu vui chơi trẻ em, khu sinh hoạt cộng đồng phục vụ cư dân
Hệ thống an ninh đa lớp vận hành liên tục 24/7
Sự bố trí tiện ích theo mô hình sống khép kín tạo nên một hệ sinh thái cư trú độc lập, phục vụ cư dân ngay tại chỗ. Điều này phù hợp với nhịp sống đô thị, khi nhu cầu di chuyển ít nhưng yêu cầu về chất lượng tiện nghi lại tăng lên rõ rệt.
Về khả năng kết nối, từ Fenica có thể di chuyển thuận lợi:
15 phút đến Quận 12 hoặc Thủ Dầu Một
20 phút đến TP Thủ Đức
50 phút về trung tâm TP.HCM
Khi các dự án hạ tầng như Vành đai 3 và tuyến Metro số 1 mở rộng được đưa vào khai thác, quãng thời gian di chuyển dự kiến sẽ rút ngắn hơn, đồng thời tác động trực tiếp đến giá trị bất động sản khu vực.
Với cấu trúc tiện ích đầy đủ ngay trong nội khu và khả năng kết nối nhanh đến các trung tâm lân cận, Fenice hướng tới mô hình sinh hoạt ít di chuyển nhưng vẫn đảm bảo trải nghiệm sống đô thị toàn diện.
MẶT BẰNG DỰ ÁN FENICA
Fenica Tân Đông Hiệp được quy hoạch trên quỹ đất 5.537 m², phát triển thành 2 block cao 22 tầng với tổng cộng 579 căn hộ. Thiết kế dự án ưu tiên công năng sử dụng thực tế, đảm bảo mỗi căn hộ đều có không gian thoáng – tối ưu diện tích – dễ bài trí nội thất.
Điểm nổi bật của Fenica là hơn 85% căn hộ có diện tích từ 45 – 65 m², tập trung vào nhóm sản phẩm:
1PN & 1PN+1: dành cho người trẻ độc thân, chuyên gia làm việc tại các khu công nghiệp lân cận
2PN diện tích vừa phải: phù hợp với các cặp vợ chồng trẻ tìm nơi an cư đầu tiên
Thiết kế gọn – Tối ưu chi phí đầu tư – Dễ cho thuê – Thanh khoản nhanh
MẶT BẰNG TẦNG
.jpg)
.jpg)
.jpg)
.jpg)
MẶT BẰNG CĂN HỘ
.jpg)
.jpg)
.jpg)
.jpg)
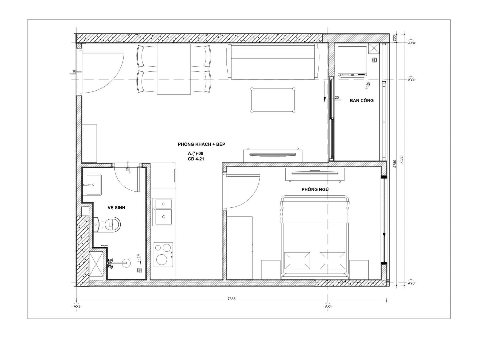
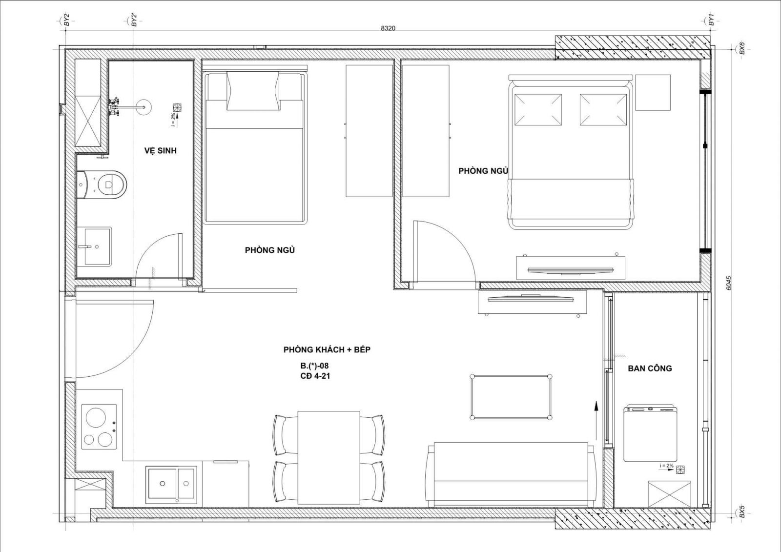
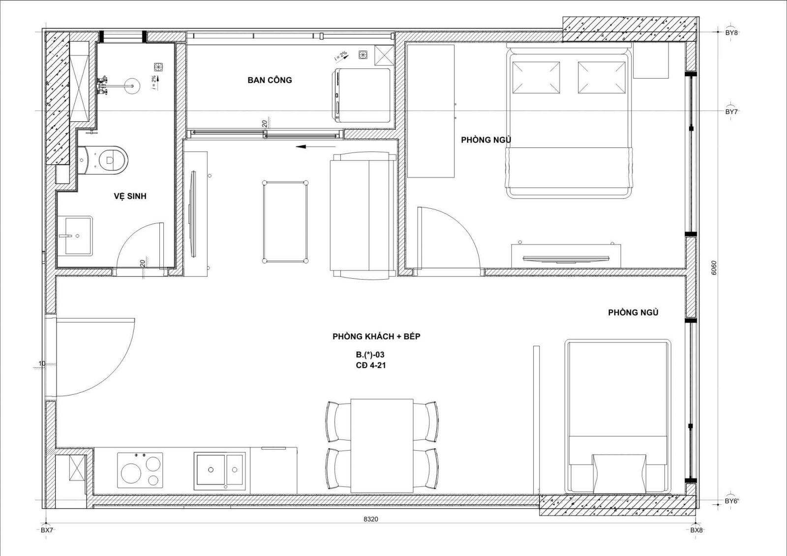
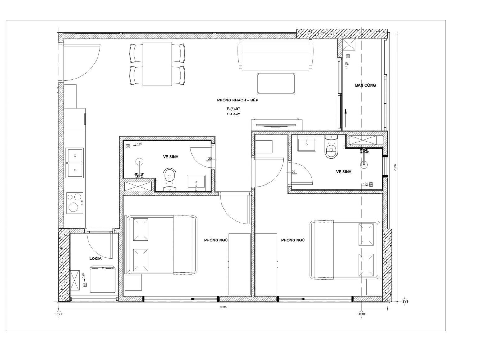
LAYOUT CHI TIẾT CĂN HỘ -Model_pdf.jpg)
-Model_pdf.jpg)
-Model_pdf.jpg)
-Model_pdf.jpg)
PHƯƠNG THỨC THANH TOÁN DỰ ÁN FENICA
.jpg)
.jpg)
.jpg)
.jpg)
.jpg)
.jpg)
.jpg)
.jpg)
.jpg)
.jpg)
.jpg)
DANH MỤC BÀN GIAO
.jpg)
.jpg)
.jpg)